Ház eladó

Budapest XXI. ker., Királyerdő városrész - Csepel-Királyerdő
129.900.000 Ft
€ 342.554
4 szoba 4 szoba
100 nm 100 nm

Ház eladó

Budapest XXI. ker., Királyerdő városrész - Csepel-Királyerdő

Leírás

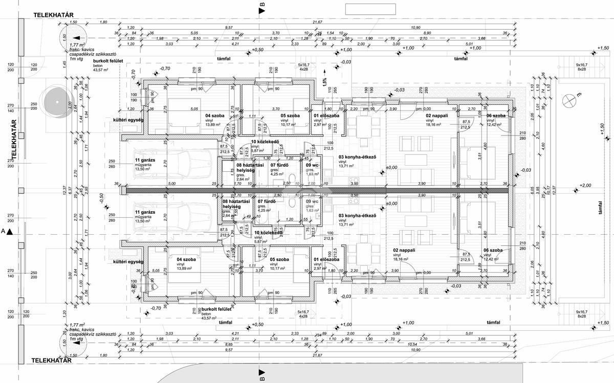
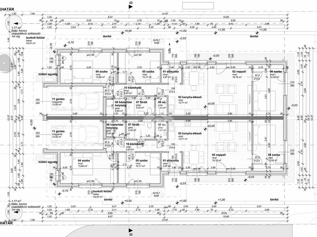
ELADÓ ÚJÉPÍTÉSŰ IKERHÁZ FÉL CSEPEL-KIRÁLYERDŐBEN

Csendes, közkedvelt és családbarát környezetben eladó egy modern, újépítésű, nappali + 3 hálószobás ikerház fél, garázzsal. Az ingatlan 25 cm-es Leier tégla falazattal épül, melyre 15 cm-es grafitos hőszigetelés kerül, biztosítva ezzel a kiváló energiahatékonyságot és alacsony rezsiköltségeket. A tetőt kakaóbarna Terrán cserép fedi, harmonizálva az épület modern megjelenésével. A műanyag külső nyílászárók (ajtók, ablakok, erkélyajtók) hőszigetelő, 3 rétegű üvegezésselvannak ellátva, tovább fokozva az energiahatékonyságot és a hangszigetelést.

A minőségi, több ponton záródó biztonsági bejárati ajtó garantálja otthona teljes védelmét. A belső falak kétszer glettelve és fehérre festve kerülnek átadásra, így azonnal készen állnak arra, hogy az Ön ízlése szerint rendezze be új otthonát. A fűtés- és melegvíz-ellátásról hőszivattyú, padlófűtéssel gondoskodik, kihasználva a költséghatékony H-tarifa előnyeit. A hálószobákban és a nappaliban klíma hűtés előkészítés biztosítja a komfortos hőmérsékletet a nyári hónapokban. A három szoba laminált parkettával, a fürdőszobák magas minőségű hidegburkolattal, a többi helyiség pedig vinyl padlóburkolattal lesz ellátva, igényes és modern megjelenést kölcsönözve az otthonnak.

Az ingatlan legkésőbbi átadása 2026. év vége.


A környék a családias hangulat mellett számos, a mindennapi élethez szükséges szolgáltatással várja a lakókat. Üzletek, gyógyszertárak és posta egyaránt könnyen elérhetők, akárcsak óvodák és iskolák. A szabadidős tevékenységekhez parkok, játszóterek, sportlétesítmények és a Királyerdei Művelődési Ház programjai kínálnak lehetőséget.

A közelben több buszmegálló is található, ahonnan számos buszjárat indul Csepel központjába, a Szent Imre térre, majd tovább a Boráros tér felé. Elérhetőek a 148-as, 152-es, 71-es és a 948-as éjszakai buszjáratok.

További kérdés esetén, keressen minket bizalommal!

Összes mutatása

Tulajdonságok

Ref.:
56910
Állapot:
Új
Lift:
Nincs
Fűtés:
Házközponti (Hőszivattyús fűtés)
Építőanyag:
Tégla
Építés éve:
2026
Összes mutatása

Energetikai tanúsítvány

Ennél az ingatlannál az energetikai tanúsítvány folyamatban van
Építés éve:
2026

Vegye fel velünk a kapcsolatot

* Ez a mező kötelező
Franchisee
Cercatore Del Nido Kft.
1214 Budapest, Kossuth Lajos utca, 142.
1214 Budapest, Kossuth Lajos utca, 142. XXI. kerület Csepel
Hétfő-Péntek: 09:00-19:00, Szombat: 09:00-13:00

Munkatársaink


  • Róbert Juhász
    Irodatulajdonos

  • Tamás Brunáczky
    Irodatulajdonos

  • Dániel Juhász
    Képviselő

  • Mónika Szabó
    Asszisztens

  • Richárd Kádas
    Képviselő

  • Kozma Zsófia
    Képviselő
Franchisee
Cercatore Del Nido Kft.
1214 Budapest, Kossuth Lajos utca, 142.
Tecnocasa Group Logo

Minden ügynökségnek saját tulajdonosa van és önállóan működik.

árfolyam 02/03/2026
EUR 379.21 HUF

cégünk

Elérhetőségeink

2026 Gruppo T.F.M. Szolgáltató Zrt. - P. IVA 27421275-2-42 - 1068 Budapest, Király utca 102.. Minden ügynökségnek saját tulajdonosa van és önállóan működik.

Adatvédelmi irányelvek | Cookies tájékoztató